本文
【交差点改良事業】一般県道 西中山越戸停車場線 青木町
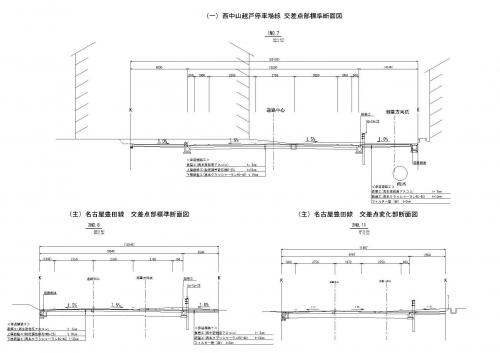
一般県道西中山越戸停車場線と主要地方道名古屋豊田線が交差する「青木町3丁目」交差点は、交差点南側に青木小学校、交差点北側に猿投台中学校があり、朝夕の通学時間帯には多くの小中学生が横断する交差点です。
当該箇所は、歩道が狭いため小中学生が車道にはみ出して通行しており大変危険な状態となっています。また、右折車線がないため、朝夕のみならず日中も慢性的に渋滞が発生し、それに起因する交通事故も発生していることから、交通安全の確保と交通環境の改善を図るため、歩道と右折車線を整備する交差点改良事業を実施します。
■事業区間
豊田市青木町地内
■事業延長
340m
■計画幅員
20m

「位 置 図」
「現 況」

「標 準 横 断 図」

